szociális lakások
-
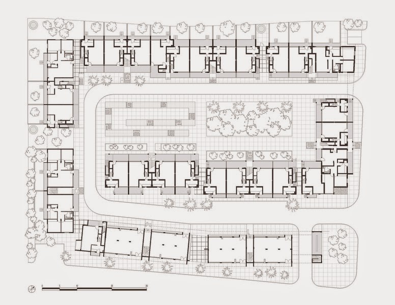
Tyre, Libanon // 1998-2008 // Hashim Sarkis Studios
-
Az épület szegény halászoknak készült, akiknek a helyzete kilátástalanná vált a tizenöt éves libanoni polgárháború után. A tengerpart a világörökség részévé vált, ezért az új lakóegyüttesük nem közvetlenül a parton helyezkedik el.
Az építész igyekezett szem előtt tartani a halászok közösségi szokásait, ezért a lakóegyüttes egy udvar köré fonódik és a különböző adottságú lakások okos alaprajzi kialakítással válnak egyenlően jóvá. Sarkis két lakástípusból (Duplex, Simplex) 3 blokktípust hozott létre, és a blokkokat helyezte el benapozás és kilátás szerint. Az lakóegyüttes csiga alaprajzot formál, amely egy közösségi udvart fog közre, egy fő közlekési útvonallal és számos szabad áttörési lehetőséggel. Az épületek homlokzatai színesek, a külvilág felé néző falak hidegebb, kékes-szürkés, a befelé nézők melegebb, sárgás-narancsos színeket kaptak, az oldalsó, rövidebb homlokzatokon pedig a kettő kombinációja jelenik meg. A világosabb színek sötétebb helyekre kerültek, és fordítva.
A lakásokban és az egész együttesben sok az átmeneti tér, az izgalmas látvány.
Sörényi Zsófia









Nincsenek megjegyzések:
Megjegyzés küldése
Megjegyzés: Megjegyzéseket csak a blog tagjai írhatnak a blogba.