
Sofia von Ellrichshausen és Maurizio Pezo duója 2002-ben alakult PEZO VON ELLRICHSHAUSEN néven Chilében. Az együttes kiemelt munkásságához nem csak az építészet, a design is hozzátartozik.

A 2013-ban épült Solo House Barcelonától nyugati irányban 250 kilométerre helyezkedik el egy természetvédelmi területen.
Ez az első megépített terv a Solo Houses projekt keretein belül. Maga a projekt olyan házak megépítését célozta meg, ahol nincsenek költségvetési korlátok, és mindegyiket más, nemzetközileg ismert avantgárd építész tervezi.
Maurizio Pezo és Sofia von Ellrichshausen olyan házat terveztek, amely kiemelt, magas tömegével uralja a tájképet. A Casa Pezo teljesen betonból készült.
A fő koncepció a szimmetria és a homotécia (párhuzamos hasonlóság). A szimmetria az udvar és a medence köré szervezett felső részben érhető tetten, a homotéciát a földszinten, a mindkét oldalon lévő lépcsők és ajtók egyfajta háromszöget képező ritmusa adja meg.
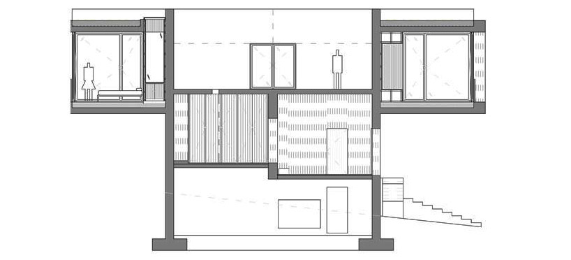
Az egész épületet egy központi oszlop tartja, amely bejárati funkciókat is ellát. Két bejárat van - miközben mindkettő ugyanahhoz a lépcsőházhoz vezet.
A lakók csigalépcsőn jutnak fel a fő szintre, ahol nappali, ebédlő és néhány hálószoba található a széleken, egy belső udvart közrezárva .
Minden szobát padlótól mennyezetig érő tolóajtók határolnak, így a négy sarokteraszhoz hasonlóvá alakítható az összes nappali- és hálóhelyiség.

A belső medence falait fehér kerámia burkolja, hogy ellensúlyozza a csupasz külső betont.
Amalia Popadinec, Kocsik Eszter
Források:
https://www.yatzer.com/solo-house-pezo-von-ellrichshausen
http://pezo.cl/?m=1&sm=1&pn=info
https://vimeo.com/66337065
Képek forrása:
kep_01.png:
kep_02.png:
kep_03.png:
kep_04.png:
kep_05.png:
kep_06.png:
kep_07.png:
kep_08.png:
kep_09.png:
kep_10.png:
kep_11.png:
kep_12.png:
kep_13.png:










Nincsenek megjegyzések:
Megjegyzés küldése
Megjegyzés: Megjegyzéseket csak a blog tagjai írhatnak a blogba.